Neubau Wohnobjekte
Aktuelles Bauprojekt
Bitterlichstrasse 85+85a
Das Bauvorhaben schreitet gut voran. Der weithin sichtbare Kran ist bereits abgebaut und die Innnenarbeiten haben begonnen. Die Bauarbeiten sind im Zeitplan etwas voraus, so dass wir derzeit mit der Fertigstellung im 2. Quartal 2026 rechnen.
Nach Fertigstellung wird dieses Projekt technisch am neuesten Stand sein:
- Wärmepumpe zur Warmwasseraufbereitung und Heizung
- Photovoltaikanlage am Dach
- Die 12 Wohnungen sind barrierefrei angelegt.
Dazu noch einige Eckdaten
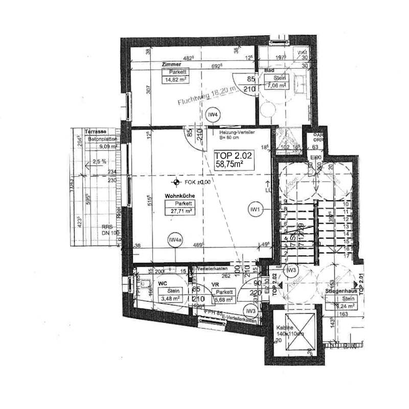
Die Wohnungen sind zwischen 50 – 100 m2 groß und haben zwischen 2 und 4 Zimmer
Die einmaligen Baukostenbeiträge liegen zwischen 5.000 und 9.000 Euro
Die voraussichtliche monatliche Belastung wird in Kürze bekannt gegeben
Rückfragen zur Anmeldung nehmen wir gerne entgegen. Verwenden Sie bitte das Kontaktformular
unter Kontakt
oder schreiben Sie direkt an office@wg-suedost.at
Eine Vorinformation

Dieser Neubau liegt gut eingebettet im Grünland in nächster Nähe zum Laaerwald und dem Böhmischen Prater

Hier noch einige Muster der Wohnungs-Grundrisse


